
ODBIÓR JUŻ ZA 3 MIESIĄCE !!!
Zakup na zasadzie cesji umowy deweloperskiej.
Oferta idealna na start lub pod wynajem ze względu na korzystną lokalizację i bliskość największego zagłębia biurowego w okolicy.
Zapraszam do zakupu ustawnej, dużej kawalerki w stanie deweloperskim , zlokalizowanej w bardzo prężnie rozwijającej się warszawskiej gminie Włochy. Mieszkanie znajduje się w kameralnej, pięciopiętrowej inwestycji Miasteczko Nova Ochota 11, wybudowanej przez uznanego, rzetelnego dewelopera VICTORIA DOM.
Mieszkanie jest jasne dzięki południowej ekspozycji okien a po pracy można się zrelaksować na ponad 4 metrowym balkonie. Widok z okna wychodzi na wewnętrzną stronę osiedla więc nieruchomość jest cicha. Funkcjonalny układ daje możliwość wygospodarowania strefy sypialnianej lub miejsca do pracy.

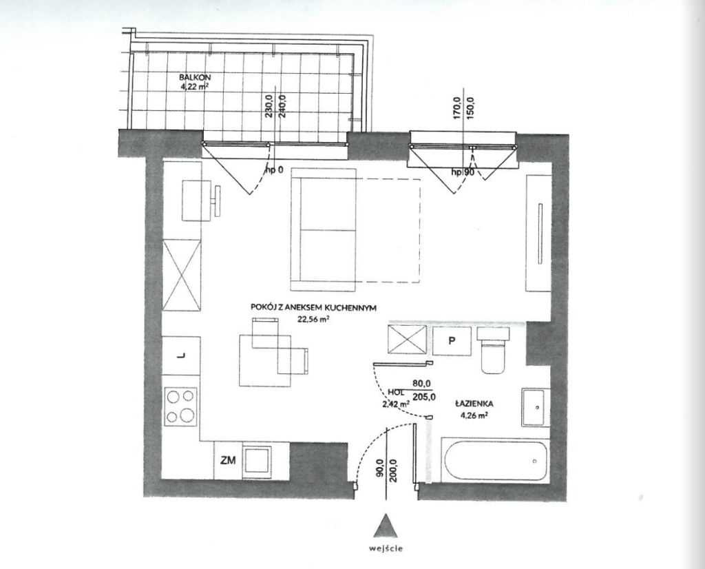
Wymiary pomieszczeń :
1. Pokój z aneksem kuchennym 22,56 m2
2. Łazienka 4,26 m2
3. Hol 2,42 m2
4. Balkon 4,22 m2
Projekt inwestycji został pomyślany jako samowystarczalny kompleks rodzinny, gdzie znajduje się zarówno przestrzeń mieszkalna jak i usługowa. Dlatego też na osiedlu zlokalizowano lokale usługowe, place zabaw, stojaki na rowery, przedszkole, kort tenisowy a wszystko to otoczone ładnie zaprojektowaną zielenią i alejkami spacerowymi. Nowoczesna architektura i niska zabudowa to duży plus inwestycji.
Korzystna lokalizacja pozwala na szybki dojazd do centrum miasta oraz innych części Warszawy dzięki pobliskim trasom zjazdowym, sąsiedztwie stacji WKD – zaledwie 3 minuty spacerem a także przystankom autobusowym i tramwajowym.
Dla miłośników aktywnego spędzania wolnego czasu w sąsiedztwie znajdują się liczne tereny zielone np. Park Szczęśliwicki ora Park ze Stawami Cietrzewia.
Bogata infrastruktura usługowo-handlowa zaczyna się już na osiedlu, natomiast jeśli chcemy zrobić większe zakupy w kilka minut dotrzemy do Galerii Blue City lub Galerii Mokotów, Reduty, Leclerca, Castoramy lub Makro. Do lotniska im. Chopina jest 10 minut.
Do mieszkania przynależy miejsce postojowe w garażu podziemnym. Koszt 40 000 Pln. Zakup obligatoryjny.
Pełna własność.

Główne cechy mieszkania:
* na start lub pod wynajem
* stan deweloperski
* odbiór za 3 miesiące
* ustawna
* funkcjonalna
* możliwość wydzielenia strefy sypialnianej lub do pracy
* duży balkon
* południowa ekspozycja okien
* jasne
* ciche
* widok w kierunku patio
* nowoczesna, kameralna, samowystarczalna inwestycja
* pełna własność
Lokalizacja
* Warszawa Włochy
* dojazd do centrum 15 minut
* stacja WKD 3 minuty spacerem
* łatwy zjazd na trasę S7
* najbliższe przystanki autobusowo-tramwajowe 150 metrów od bloku
* 10 minut do lotniska
* bogata infrastruktura usługowo-handlowa
* liczne tereny zielone
Zapraszam do kontaktu, z przyjemnością podzielę się z Państwem wiedzą na temat tej inwestycji i odpowiem na więcej pytań.

Szanowni Państwo, wiem jak ważne jest sfinansowanie zakupu nieruchomości, dlatego współpracuję z doświadczonymi ekspertami kredytowymi, dzięki czemu macie Państwo dostęp do najlepszych ofert kredytowych dostosowanych do indywidualnej sytuacji finansowej, co znacznie ułatwia i przyspiesza proces zakupu.

Treść niniejszego ogłoszenia nie stanowi oferty handlowej w rozumieniu Kodeksu Cywilnego. Treść ma charakter informacyjny i zalecamy ich osobistą weryfikację.
Dodaj komentarz